[W3703-364]朝来市和田山町土田
メッセージ
農地が複数あり。希望があればセットで購入可能です。
| 物件番号 | W3703-364 |
|---|---|
| 区分 | 売却 |
| 所在地 | 朝来市和田山町土田 |
| 物件種別 | 住宅建物 |
| 利用状況 | 2012年から空き家(年に何度か帰省し清掃) |
| 価格(所有者希望) | 売却:800万円 |
| 建物 | 木造2階建て(昭和5年建築) |
| 延べ床面積 | 171.89㎡ |
| 敷地面積 | 647.66㎡ |
| 付帯物件 | 車庫、庭、農地、物置 |
| 設備 | 電気、ガス、風呂(灯油)、上下水道、水洗トイレ、ケーブルテレビ |
| 交通 | JR和田山駅から1.9km |
| 修繕必要の有無 | 多少の補修が必要 |
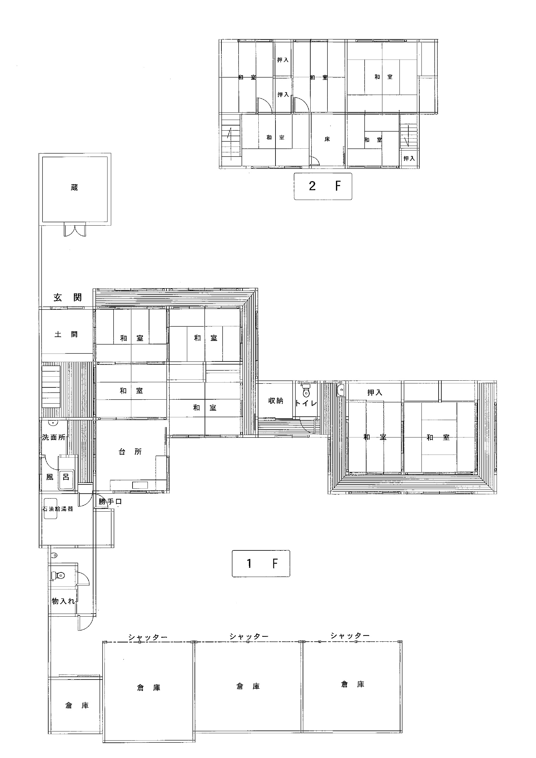
| 間取り図 | |
| その他 | ・農地、山林があります。希望があれば合わせて購入可能です。 ・告知義務あり(心理的瑕疵物件) ※物件に関するお問い合わせや内覧希望は、朝来市役所空き家バンク担当(TEL:079-672-1492)にご連絡ください。 ※この物件は、兵庫県宅建協会但馬支部会員の、株式会社M・ハウジング(朝来市山東町末歳)が仲介・媒介業務を担当します。ただし、内覧については、朝来市役所空き家バンク担当(TEL:079-672-1492)で受付します。 |
※聞き取り等による情報もありますので、現地と違う場合があります。 ※画像をクリックすると拡大します。




































